Reiheneinfamilienhaus in Bern
Dachausbau
| Projekt | Reiheneinfamilienhaus in Bern Dachausbau |
| Bauherrschaft | Privat |
| Realisierung | 2021 |
| Fotografie | Damian Poffet |
Das zweigeschossige Reiheneinfamilienhaus mit Baujahr 1945 und einem eingeschossigen Anbau von 1955, ist Teil einer ehemals genossenschaftlich erbauten Siedlung.
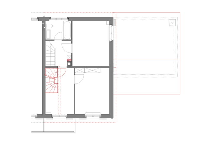
Die Arbeiten umfassen die Sanierung der beiden Satteldächer und den Ausbau des Dachraumes. Dem ursprünglich dunklen Estrichraum mit verwinkelten Ecken und wildem Materialmix, wird mit dem Umbau eine neue Qualität gegeben. Die ursprünglich eingekleideten Sparren wurden freigelegt und lassen zusammen mit dem hellen Holztäfer die relativ niedrige Raumhöhe grosszügiger wirken. Die neuen Dachflächenfenster bringen viel Tageslicht. Die neu eingebaute Nasszelle ist geschickt um den Kamin platziert und nimmt mit den grünen Keramikplatten den bestehenden Kachelofen im Erdgeschoss als Farbreferenz.
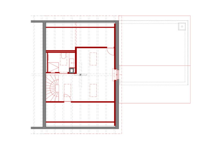
Der Dachraum erhält einen neuen Parkettboden. Die niedrigen Restflächen dienen als Stauraum, welche mit Tapetentüren vom Raum her erschlossen sind.
Der Dachraum wird über eine neue gewendelte Treppe erschlossen. Das Treppenelement ist als Möbel mit Stauraum und Schiebetüre ausgebildet.














