Erweiterung Schule Oberdorf in Zollikofen
| Projekt | Erweiterung Schule Oberdorf in Zollikofen |
| Bauherrschaft | Gemeinde Zollikofen |
| Realisierung | 2020 - 2022 |
| Bauingenieur | WAM Planer und Ingenieure AG |
| Holzbauing. | Indermühle Bauingenieure, Thun |
| HLK | Ingenieurzentrum Rieder & Parner GmbH, Muri b.B. |
| Sanitärplanung | Acquedotto GmbH, Burgdorf |
| Bauphysik | Weber Energie & Bauphysik AG, Bern |
| Fotografie | Bildaufbau – Christine Blaser, Bern |
Das neue Gebäude markiert präzise den Eckpunkt zwischen dem Schulhaus Zentral und dem Kindergarten Häberlimatte im Süden. Die markanten Bäume, welche entlang dem Weg neben dem Sportplatz aufgereiht sind, bleiben somit erhalten. Ein Ausschnitt im neuen Volumen hält Abstand zum ersten Baum in dieser Reihe und bildet so eine eigene Hofsituation. Dieser Hof dient als separater Eingang für die Kindergärten im Erdgeschoss. So erhalten sie im Süden ihren eigenen Aussenraum mit einem grosszügigen Spielplatz mit Sand- und Wasserspielen und einem Holzgerüst zum Klettern und Balancieren.
Das Gebäude im Minergie P Standard hat einen harten Kern aus Beton und eine weiche Schale aus Holz. Getragen werden die Geschossplatten durch die massiven Nebenraumkuben im Zentrum vom Gebäude und Hartholzstützen in der Fassadenebene. Die Massivbauweise im Innern dient ebenfalls als Speichermasse für den sommerlichen Wärmeschutz.
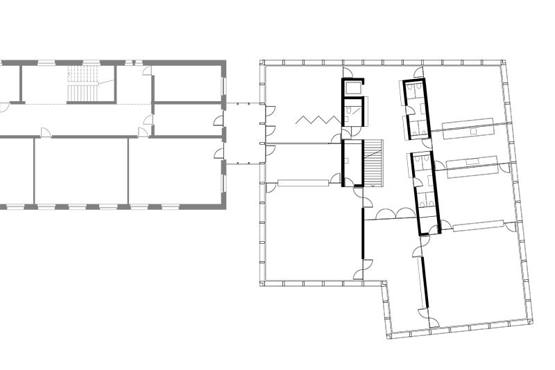
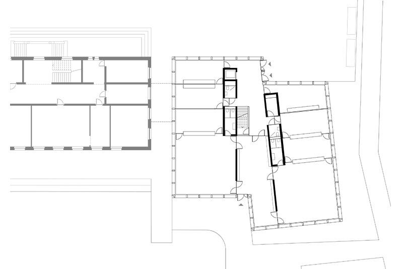
Das dreigeschossige Gebäude enthält auf jedem Stock je zwei Hauptschulräume mit je einem Gruppenraum. Im Gebäude sind diverse Büroräume, Sitzungszimmer und Schulküchen für die Nutzungen der Kindergärten, Schule und Tagesschule angeordnet.
Der Neubau ist über eine zweigeschossige Passerelle an den denkmalgeschützten Bestandesbau angeschlossen.
Auf dem Dach ist eine grosse PV-Anlage eingerichtet. Geheizt wird durch den Anschluss am Wärmeverbund Zollikofen.













